| 伊勢を中心に中南勢地域の情報に詳しい不動産会社です。安心してお任せください |
|
|
        |
 |
|


有限会社辻岡不動産
〒516-0018
三重県伊勢市黒瀬町1232-2

Tel:0596-22-2550
Fax:0596-23-4688
E-mail:tsujioka@zb.ztv.ne.jp
代表者
辻岡 美奈子
営業時間
10:00〜17:00
定休日
土、日、祝日
(事前電話予約にて土日祝日の対応可)
免許番号
三重県知事免許(8)
第2181号
(社)全国宅地建物取引業保障協会会員
(社)三重県宅地建物取引業協会会員
|
|
|
ホーム > 賃貸物件検索 > 物件詳細情報 |
 |
 |
| |
賃貸物件詳細情報 |
 |
伊勢市辻久留2丁目 |
|
賃貸物件詳細情報
お問い合わせ番号: l-457-0
|
| 種別 |
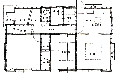
戸建て |
間取り |
3DK |
所在地 |
伊勢市辻久留2丁目 |
| 家賃 |
55,000円 |
交通 |
JR参宮線 山田上口駅 徒歩18分 車4分 約1.6km
三重交通バス 徒歩3分
|
| 駐車場 |
1台込み |
共益費・管理費 |
0 |
学区 |
中島小学校
宮川中学校
|
保証金・敷金 |
50,000円 |
| 礼金 |
|
| 居室階数 |
1 |
号室 |
0号室 |
| 間取り |
3DK |
床面積 |
97u |
| 建築年月 |
昭和57年12月 |
構造 |
木造 |
設備 |
インターホン / ガスコンロ設置可 / 室内洗濯機置場 / 洗面所独立 / 物置 / 専用トイレ / 水洗トイレ / バス・トイレ別 / ガス給湯 / シャワー / ペット不可 / |
| 備考 |
エアコン2台完備
庭→小3か所
見晴らし最高!宮川の花火大会一望。 |
| 現況 |
|
入居可能日 |
即入居可 |
| 取引態様 |
仲介 |
情報更新日 |
2026年1月29日 |
|
|

|

|
|

|
(有)辻岡不動産 伊勢市黒瀬町1232-1 三重県知事免許(8)2181 TEL 0596-22-2550 FAX 0596-23-4688
|
| |